|
EL MIEDO A LA AMENAZA NUCLEAR Y LAS OBRAS DE PROTECCIÓN CIVIL EN SUIZA
Marc Kaenzig
Université de Fribourg / Becario del Ministerio de Asuntos Exteriores
Español en la Universidad de Barcelona
marc.kaenzig@unifr.ch
El miedo a la amenaza nuclear y las obras de protección civil en Suiza (Resumen)
Las obras de protección civil en Suiza representan no sólo una forma de actuar en el ámbito de la protección de la población, sino también un enorme gasto financiero para el Estado y, en definitiva, para todos los ciudadanos que las financian a través de los impuestos o pagando directamente las nuevas obras. Las locuras cometidas en este ámbito a partir del comienzo de la guerra fría, que resultan difícilmente inteligibles para cualquier extranjero, lo son también para el propio ciudadano suizo, que mucha veces ni se da cuenta del impacto económico y territorial que tienen las obras de protección civil. La aceptación por parte de la opinión pública suiza de los gastos y las teorías sobre el funcionamiento de los refugios en caso de conflicto nuclear, está basada por un lado en una mentalidad conservadora y aislacionista, y, por otro, en el convencimiento de que el Estado tiene la suficiente capacidad financiera para abordar unas inversiones ingentes. Afortunadamente, los profundos cambios a nivel geoestratégico y la caída del muro de Berlín han propiciado en los últimos años un cambio de actitud, aún muy minoritario, sobre la conveniencia de mantener el nivel de inversiones existente.
Palabras clave: protección civil / Schutzraum / refugio antinuclear / inversiones
The Fear of Nuclear Threat and Construction of Civil Protection Installations in Switzerland (Abstract)
Construction of civil protection installations not only represents strategic action taken by the Swiss government, but also amounts to an enormous financial investment for the state and its inhabitants, who paid for them in the form of taxes and as part of the construction costs on new homes. While foreigners may not be aware that the Swiss government mandates the construction of these installations for the purpose of protecting its citizens since the Cold War, it can also be said that the Swiss citizens themselves do not fully appreciate the impact that these installations have on the country's economy. The ongoing procurement of funds and the justification that civil protection installations are an effective and necessary safeguard against actual nuclear attack, are the products of a conservative mentality. This, coupled with the country's fear of integration and the fact that a strong national economy allows for the exorbitant misappropriation of public funds, results in the continued existence of these civil protection installations. Fortunately, since the fall of the Berlin-wall and its radical influence on the geo-strategic situation, changes are taking place, albeit slow, resulting in diminished investment for civil protection installations in Switzerland.
Key words: civil protection / Schutzraum / nuclear shelter / investments
Este trabajo tiene como objetivo describir la historia de las obras de protección civil de Suiza frente a la amenaza nuclear, biológica y química, desde sus comienzos en el periodo de entreguerras hasta la actualidad. El lector debe tener en cuenta que las obras de protección civil son sólo una parte del conjunto de la protección civil, que está atendida por un amplio personal, organizado como un ejercito de milicia. De hecho, en sus comienzos la protección civil formó parte del Departamento Militar, hasta que, más tarde, se configuró como un organismo autónomo dentro del Departamento de Justicia y Policía. Este trabajo abordará únicamente la parte de las obras de la protección civil y dejará al margen todo la parte del personal (1).
En cualquier caso, se ha tener en cuenta que la organización de "la" protección civil está englobada en un mecanismo de seguridad nacional cuyo elemento más importante son las Fuerzas Armadas, y que, como parte integrante de la seguridad nacional, se puede ver como un tranquilizante para la fobia colectiva que padece la mayoría de la población. El miedo quizás estuvo justificado en su tiempo, pero hoy en día ya no tiene ninguna justificación; y únicamente lo fomentan las actuaciones y la influencia de sectores conservadores de la población y del gobierno.
La primera parte del trabajo estará dedicada a examinar los factores históricos que han contribuido a la elaboración de la protección civil en Suiza para llegar a lo que es hoy en día. En la segunda parte expondré la legislación en que se basa toda la obra de protección civil y la evolución de los textos legales a partir de1934. En la tercera parte, dedicada al refugio antinuclear, se describirán su funcionamiento y los criterios técnicos de construcción, así como las obras efectuadas y su importancia en la economía nacional. Antes de las conclusiones, abordaré a grandes rasgos la posición de la población suiza sobre las obras de protección civil.
Las fuentes consultadas para realizar este trabajo son textos legales, folletos informativos de la oficina de protección civil suiza, obras generales sobre la historia de Suiza y estudios realizados en el ámbito de la protección civil, así como reglamentos de la misma institución. En todo caso, las fuentes existentes ofrecen pocos datos concretos sobre las obras de protección civil, aparte de que los cambios producidos en la década de los noventa en su organización y la legislación que les afecta dificultan la obtención de datos sobre dicho periodo.
El texto, que no pretende presentar la totalidad de los argumentos a
favor y en contra de la protección civil y sus obras, se limita
a abordar algunos aspectos significativos de esta institución poco
conocida en el extranjero - e incluso en la misma Suiza.
Antecedentes históricos
Historia de Suiza a partir de 1848
En el caso de Suiza, la no-implicación en conflictos armados durante más de 150 años es principalmente el resultado de una política de neutralidad, que no siempre ha correspondido a los ideales de los padres fundadores de la Constitución suiza de 1848 (2).
La neutralidad implica un cierto aislamiento, porque supone no formar parte de ninguna alianza, tal como ocurrió en la segunda guerra mundial, ni integrarse en ningún espacio supranacional, como en la Unión Europa. Para un país pequeño como Suiza, el objetivo principal, en caso de conflicto armado, siempre ha sido la decidida defensa del propio territorio, con unas Fuerzas Armadas que cuentan con unos efectivos muy numerosos.
Desde el punto de vista de la defensa del territorio, hasta la segunda guerra mundial, la concepción de la defensa del territorio era bastante sencilla y consistía básicamente en el cierre de fronteras y el estacionamiento de tropas a lo largo de ellas, ya que la única vía de avance masivo de tropas era entonces la vía terrestre. Sólo a partir del año 1934 se planteó la protección aérea pasiva (3), debido al uso de armas destructivas en la guerra aérea en el ámbito de objetivos estratégicos, tal como ocurrió pocos años después en la segunda guerra mundial, y ya no sólo a nivel táctico, como los ataques de gas mostaza de la primera guerra mundial.
Segunda Guerra mundial (estrategia del "Réduit") y amenaza nuclear como experiencias clave
El desarrollo de la segunda guerra mundial fue el ejemplo más extremo para Suiza de hasta donde puede llevar la neutralidad de un país. El estallido de la guerra en 1939 llevó a Suiza a decretar la movilización general y el cierre total de fronteras (4). Los cambios principales de la estrategia de defensa del territorio se plasmaron en la creación del concepto del Réduit, surgido de la reflexión de que ya no era posible defender la totalidad del territorio, debido a los avances en material bélico, la aparición de la guerra aérea (5) y la mayor movilidad de las fuerzas de tierra, gracias a los tanques, la artillería de largo alcance, etc. El dicho Réduit consistía en retirar las tropas a un territorio delimitado principalmente en el área de los Alpes, incluyendo la población residente de la zona y los principales poderes políticos. Este territorio difícilmente atacable habría representado entonces una gigantesca fortaleza con una autonomía en víveres y pertrechos de varios meses e incluso años. Pero no hay que olvidar que esa situación únicamente hubiese tenido lugar en el caso de fracaso de las tropas en la frontera. También formaba parte del concepto la idea de que la población fuera del Réduit se lanzaría a la guerra de guerrillas contra el posible invasor (6).
Por aquel entonces, en materia de protección civil sólo existía la protección aérea pasiva, pero, como pondrían de manifiesto después los devastadores ataques aéreos sobre las ciudades alemanas por parte de las fuerzas aliadas, había que actuar si se quería proteger a la población. En este ámbito se inscribe el Schutzraum (7), basado en el bomb shelter inglés. Los primeros refugios fueron simplemente los sótanos, aunque hay que reconocer que éstos no habían sido construidos con ese fin.
Luego, la destrucción masiva de Hiroshima y Nagasaki con bombas nucleares demostró que para proteger la población contra los ataques aéreos había que hacer algo más que confiar en la clásica defensa del territorio por las Fuerzas Armadas. Con dicho fin se promulgó en 1954 el decreto sobre construcción de obras de protección aérea (8). La protección aérea seguía incumbiendo a las Fuerzas Armadas, pero con el nuevo decreto se iba a crear un organismo independiente (9).
En 1959 se incorporó a la Constitución suiza un nuevo artículo que abrió definitivamente el camino para la protección civil tal como se conoce hoy. Su puesta en marcha respondía a la situación de creciente tensión entre las dos superpotencias EE.UU. y URSS, que culminó en 1962 con la crisis de los misiles soviéticos en Cuba durante la cual estuvo a punto de estallar una guerra nuclear a gran escala. La única manera de protegerse contra un peligro como ése era la construcción sistemática de refugios antinucleares.
Guerra fría e influencia del concepto de neutralidad
Mientras alrededor de Suiza se forjaban numerosas alianzas estratégicas y económicas como la OTAN y la CEE, y se ampliaban los órganos de la ONU, el país prefería quedarse al margen, so pretexto de una neutralidad que, aunque ya no era absoluta, como durante la segunda guerra mundial, todavía se mantenía como un objetivo prioritario (10). Esa opción aislacionista se debía seguramente a que el pueblo suizo vivía en paz desde hacía más de 100 años en paz, sin conflictos armados, y había alcanzado un nivel económico muy alto. Precisamente, el miedo a perder su elevado estándar de vida siempre ha desempeñado un papel decisivo en las votaciones sobre la adhesión a alguna de las citadas organizaciones supranacionales. Los electores siempre han optado por valores seguros.
En el ámbito de la protección civil se continuó realizando obras y ampliando la organización, basándose en el argumento de que la ampliación de los arsenales nucleares y los avances en el poder destructivo de las armas durante la guerra fría constituían una grave amenaza para Suiza. En esa misma línea argumental, se recurrió también al peligro que entrañan las armas químicas y biológicas.
Desde la posguerra se ha mantenido la política de neutralidad,
consistente en garantizar la independencia del país y la política
sin guerra (nichtkriegerische Politik) (11),
que se plasma en la renuncia a la guerra ofensiva y a la participación
en guerras entre otros estados.
Nueva situación geoestratégica y amenazas actuales
Con la caída del muro de Berlín en 1989 llegó el final de la guerra fría y, con él, la desaparición de la permanente amenaza nuclear, sin que la nueva situación provocara la sustitución de la protección civil suiza, ya que el país sigue fuera de las principales organizaciones estratégicas y económicas (12), aunque sí llevó a la adopción de medidas como la reducción de efectivos de las Fuerzas Armadas y de la duración de la obligación de servir.
A pesar de la nueva situación, acercamiento de la OTAN y la UE
hacía los países de Europa central y Europa del este y la
desaparición de Rusia como superpotencia (13),
la permanencia de la protección civil se justifica por la aparición
de nuevas formas de amenazas (14) y la
asignación de nuevos objetivos a la protección civil
(15). A ello responde la revisión que se llevó
a cabo en 1995 y el proyecto de reforma que se presentará en 2003
(16).
Legislación aplicable a la realización de obras
Este capítulo intentará recapitular las principales innovaciones
en el plano legislativo sobre la protección civil y más en
concreto sobre la construcción de obras de protección civil.
Se dará primero un repaso de la evolución en el ámbito
de la protección civil con las fechas más importantes. Hay
que reconocer que, aunque las obras se proyecten en aplicación de
las leyes, pocas veces se realizan cumpliendo todos los requisitos que
señala la legislación. Esa es una práctica generalizada
que los constructores privados justifican por los elevados costes, la complejidad
técnica y el tamaño cada vez mayor de las obras obligatorias,
sin que el Estado tampoco parezca muy decidido a efectuar un control rigurosos
de las obras. En cambio, en el ámbito de las construcción
de obras realizadas por el sector público, la regla general ha sido
siempre la observancia de las normas aplicables a las obras de protección
civil.
Los comienzos de la protección civil en Suiza
La historia de la protección civil en Suiza tiene ya más
de sesenta años de antigüedad. Según un documento informativo
de la oficina federal de protección civil, la relación por
orden cronológico de las leyes relacionadas con la protección
civil se extiende desde 1934 (cuadro 1).
| 1934 - 1954 Protección aérea pasiva dentro
del Departamento Federal Militar
1950 Resolución federal sobre las construcción de obras de protección aérea 1954 Decreto sobre la protección civil 1959 Incorporación del articulo sobre la protección civil en la Constitución Federal 1962 Ley federal sobre la protección civil 1963 Ley federal sobre las construcción de obras de protección civil 1963 Creación de la oficina federal de protección civil (oficina dentro del Departamento Federal de Justicia y Policía 1971 Concepto de la protección civil 1973 Concepto de la defensa integral / política de seguridad 1977 Revisión parcial de ambas leyes sobre la protección civil 1978 Revisión total de ambos decretos sobre la protección civil 1978 Decreto sobre las construcción de obras de protección civil 1980 Abolición de las contribuciones federales a las construcción de obras privadas de los Schutzräume 1983 Informe intermediario del Consejo Federal sobre la situación de la protección civil 1984 Revisión parcial de ambas leyes sobre la protección civil (en función desde el 1.I.1986) 1985 Revisión parcial de ambos decretos sobre la protección civil (en función desde el 1.I.1986) 1987 Informe de expertos Entrada en acción de la protección civil en casos de ayuda de emergencia 1989 Formación de la organización de proyecto Protección civil 95 1990 Informe 90 sobre la política de seguridad de Suiza. El Informe 90 sustituye al informe sobre la concepción de la defensa integral del año 1973. 1994 Nueva ley federal sobre la protección civil 1994 Nuevo decreto sobre la protección civil 1994 Decreto sobre las normas de eficacia de las obras de protección civil 2001 Proyecto de ley para el 2003 sobre la protección civil. |
A pesar de esta larga historia, en realidad hasta 1962 no se pasa de una fase inicial. Hasta el año 1962 la protección civil se reducía a la defensa aérea pasiva y no ocupaba un lugar importante dentro de las Fuerzas Armadas. Pero ya durante la segunda guerra mundial el gobierno se había dado cuenta de la necesidad de crear un organismo independiente de las Fuerzas Armadas para garantizar la protección integral de su población. La decisión sobre la protección civil de 1950, el decreto de 1954 y la incorporación de la protección civil a la Constitución Federal fueron el marco dentro del cual se elaboró la necesaria ley de 1962 que rige la organización de la protección civil tal como se la conoce hoy en día.
El primer apartado de la nueva ley de 1962 caracteriza la protección civil como un "elemento de la defensa nacional" (17), cuyo objetivo queda definido en los siguientes términos: "La protección civil tiende a proteger, a salvar y socorrer a las personas y a proteger los bienes a través de medidas destinadas a prevenir o atenuar las consecuencias de conflictos armados. No tiene misiones de combate." (18) Entre las funciones de la protección civil destaca la adopción de "medidas contra la acción de armas atómicas, biológicas y químicas" y "el desplazamiento parcial de la población" (19), funciones ambas en relación con la ocupación y el funcionamiento correcto de los refugios antinucleares. Entre los medios utilizables para cumplir su misión se mencionan también los "refugios e instalaciones para la población" (20). Los organismos competentes en la materia son el Estado, al que compete dictar las normas legislativas, y los cantones, que tienen a su cargo organizar la protección en su territorio y escoger los municipios obligados (21) a la construcción de las obras y a la instrucción del cuerpo de protección civil. Los municipios respectivos son responsables del funcionamiento de su organización local (22). Los propietarios, inquilinos e instituciones son responsables de la instalación de los elementos previstos por la ley (23). Cada ciudadano debe conocer las medidas a tomar en caso de una emergencia cualquiera (24). De los artículos de la ley sobre equipamiento, material, instalaciones y dispositivos, se puede deducir que la mayoría de las inversiones corren a cargo de los municipios y los particulares. Las tareas organizativas, legislativas y de control corresponden a los cantones y el Estado Federal (25). En el tema de los costes, la confederación subvenciona a los cantones, en función de sus capacidades financieras, con un porcentaje de entre el 55 por ciento y el 65 por ciento de las inversiones en protección civil. Los cantones tienen capacidad discrecional para distribuir las subvenciones entre los municipios (26).
Hay que tener en cuenta también que esta ley regula todo lo concerniente
a la organización del servicio obligatorio de protección
civil.
Ley de obras de protección de 1963
Con esta ley se reguló por primera vez las obligaciones de los constructores privados y los municipios en materia de construcción de refugios antinucleares (Schutzräume). La ley es consecuencia lógica de la ley general sobre la protección civil del 1962. En los pequeños municipios no es necesario mantener una organización de protección civil y refugios colectivos. Es competencia de los cantones el decidir si algunos municipios pueden fusionarse o no para ahorrar (27).
La construcción de obras obligatorias abarca desde los refugios privados y los comunitarios hasta los hospitales y refugios públicos en centros importantes. En el caso de los propietarios de vivienda solamente deberían construir refugios en edificios nuevos o en casos de reformas importantes. En el de hospitales, se trata de añadirles hospitales de socorro bajo tierra. En los municipios sin hospitales se trata de la instalar puestos de socorro bajo tierra, siempre en función del tamaño del municipio (28). Desde el punto de vista de la financiación, se preveía que las subvenciones federales, cantonales y municipales, cubrieran como mínimo el 70 por ciento de los costes de construcción, con la limitación impuesta por el Estado de que el coste de la instalación de protección civil no superara el 5 por ciento del coste total de la nueva obra (29). El mantenimiento corre a cargo del propietario (30). A este respecto, merece destacarse el reconocimiento de la capacidad de expropiar, que implica el reconocimiento de la protección civil como una función de importancia nacional.
El decreto sobre construcción de obras de protección civil del 15.V.1964, señala que los refugios privados han de tener capacidad para refugiar a las personas que normalmente ocupan el edificio. Los refugios públicos han de poder acoger una cantidad de personas equivalente al promedio de las que frecuentan el lugar en cuestión. También se regula la conservación de reservas de alimentos básicos, agua, medicamentos y material sanitario (31).
Técnicamente, el decreto sobre las normas de eficacia de las obras de protección civil del 11.VIII.1976 proporciona más información y señala que "la protección debe ser eficaz contra los efectos de las armas modernas, especialmente las armas atómicas, clásicas, químicas y biológicas." (32) Generalmente el objetivo es de alcanzar una protección que
"garantice la supervivencia de los ocupantes a una distancia, contada desde el centro de la explosión de un arma atómica, donde la presión atmosférica ha caído a 1 bar; asegure la protección contra los efectos de armas clásicas cuando el punto de impacto esté cerca de la obra; comporte un sistema de ventilación forzada y una filtración contra la penetración de sustancias químicas y agentes de combate biológicos."(33)
En el caso de los hospitales y puestos de mando de la protección civil se aplican los mismos criterios, salvo el de la presión a resistir que aumenta a 3 bars (34). Este último ejemplo puede llevar a cuestionar la diferencia de criterios empleados para la protección de la población "normal" y la de unos mandos privilegiados.
En la revisión parcial de la ley federal sobre la protección
civil, del 7.X.1977, no hay cambios en lo que se refiere a las obras de
protección civil. La revisión establece sobre todo las funciones
del personal de protección civil. En lo que se refiere al propietario,
sólo se añade que su responsabilidad es la de conseguir los
materiales para instalar en los refugios (35).
Las normas sobre las construcción de obras de protección civil de 1978
El decreto de 1978 representa la revisión total de la de la ley de 1963. En él cabe destacar sobre todo el artículo 3 sobre el número de plazas protegidas que deberían ser construidas en cada tipo de edificio:
"- casa normal o de vacaciones: 1 plaza protegida por cada habitación
- hospitales y hospicios: 1 plaza protegida por cada cama
- hoteles: 2 plazas por cada 3 camas
- restaurantes, locales de ocio (cines, teatros, etc.), escuelas, locales
de reuniones: 2 - plazas protegidas por cada 3 plazas
- iglesias y edificios destinados al culto: 1 plaza protegida por cada
2 plazas
- oficinas y edificios de la administración, industrias, fábricas,
talleres: 2 plazas protegidas por cada 3 puestos de trabajo
- establecimientos de venta al público: 1 plaza protegida por
cada 20m2 de superficie total
- almacenes, edificios de exposiciones permanentes o de ferias: 1 plaza
protegida por cada 150m2 de superficie total
Estas cifras se pueden reducir en un 50 por ciento en el caso de que haya un número suficiente de plazas permanentes en viviendas en un perímetro de un kilómetro." (36)
Según esta ley, el gobierno federal puede dispensar a edificios aislados o en zona de alto peligro de la obligación de construir obras de protección civil, en cuyo caso el propietario está obligado a pagar el importe de una plaza en un refugio colectivo del municipio (37). La subvención para la construcción de obras es la misma que en la ley de 1963. Llama la atención el hecho de que en caso de incumplimiento de la obligación de construcción de refugios, los cantones están facultados para llevarlas a cabo a costa del propietario (38). Por lo menos a partir de este decreto se admite la utilización de instalaciones de protección civil para otros fines, siempre que se puedan adecuar para desempeñar sus funciones propias en del plazo de 24 horas, con excepción de las instalaciones de los hospitales que no pueden ser modificadas (39).
Con el fin de reducir las obras de protección civil privadas, el gobierno dejó de subvencionarlas en 1980, lo que favoreció la realización de obras centralizadas por los municipios, que son más controlables y suponen un ahorro en las inversiones. La cantidad ahorrada por el constructor privado será reinvertida en la adquisición obligatoria de plazas en refugios colectivos de los municipios. Pero a pesar de esta compra obligatoria, aún sale más barato la compra de una plaza construida por el municipio (40). A través de este ejemplo se ve claramente cómo se produce la distribución de competencias entre el Estado Federal, los cantones y los municipios.
En la legislación de 1995 sobre las construcción de obras de protección civil, que está todavía en vigor, se modifican las porcentajes de plazas protegidas obligatorias por edificio. La nueva normativa establece lo siguiente:
"- casas normales y de vacaciones: 1 plaza protegida por cada habitación
habitable (hasta 9 habitaciones), 2 plazas protegidas por cada 3 habitaciones
habitables (a partir de 10 habitaciones, pero con mínimo de 9 plazas
protegidas)
- hospitales y asilos: 2 plazas protegidas por cada 3 habitaciones
habitables
- restaurantes, hoteles, escuelas, colonias, locales de instrucción,
de reuniones y de ocio, iglesias y edificios de culto: 1 plaza protegida
por cada 60m2 de superficie total por piso
- oficinas, edificios de la administración, pequeñas
tiendas y grandes superficies comerciales: 1 plaza protegida por cada 60m2
de superficie total por piso
- empresas, industrias y talleres: 1 plaza protegida por cada 200m2
de superficie total por piso
- almacenes, edificios de exposiciones permanentes o de ferias: 1 plaza
protegida por cada 400m2 de superficie total por piso."(41)
Se observa, pues, que hay una ligera disminución de plazas por
edificio, lo que quizás se deba a una exagerada construcción
durante los años setenta y ochenta. En esta ley se suspenden también
las subvenciones del Estado a los particulares y la posibilidad de comprar
plazas en refugios colectivos. Por lo demás, la ley no introduce
ningún otro cambio importante en el apartado de las construcción
de obras de protección civil.
La legislación para el futuro
El proyecto de ley que se está elaborando actualmente para el
año 2003 se basa en el principio de que cada habitante disponga
de una plaza protegida cerca de su domicilio, accesible en "un plazo de
tiempo razonable" (42). Aparte de este
nuevo principio, el proyecto es similar a la ley de 1995, aunque no se
descarta la posibilidad de introducir nuevos cambios en el proyecto durante
el año 2002.
El Schutzraum de cada ciudadano suizo
Detalles arquitectónicos
De acuerdo con la legislación, en principio cada refugio o Schutzraum está constituido, como hemos visto, por una superficie que depende del número de ocupantes. Se encuentra siempre bajo tierra y está construido por paredes de hormigón armado. Contiene en todo caso solo una entrada con una puerta del mismo material que las paredes y el techo y una salida de emergencia a través de una ventana, también cerrada por una puerta igual a la de la entrada, pero de dimensiones más pequeñas. La salida de emergencia al exterior del Schutzraum se compondrá de un tubo de escape también reforzado.
Dentro del refugio es obligatorio instalar el mismo número de plazas para dormir que de ocupantes previstos, las cuales deben estar hechas por una especie de estantería metálica con colchones de espuma. Además es obligatorio instalar un número mínimo de retretes "secos" (43), en relación con la cantidad de ocupantes del refugio. También es obligatorio instalar una bomba de aire, completada por un filtro de aire, contra los agentes químicos o biológicos. Esta bomba podrá ser activada eléctricamente o, en caso de fallo de la red eléctrica, manualmente.
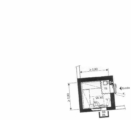
Figura 1
Ejemplos de planes de refugios del tamaño para acoger 5 a
7 personas (izquierda, 8m2) y para 15 personas (derecha,
16m2).
Es particularmente interesante la superficie planificada.

Fuente: OFFICE FÉDÉRAL DE LA PROTECTION
CIVILE. ITAP 1984: Instructions téchnique pour la construction d'abris
obligatoires. Berne: EDMZ, 1984, p. 36-37.
Un ejemplo de exigencias mínimas para un Schutzraum pensado para 5 a 7 personas (casa familiar) es el siguiente: 1 compartimento de 8m2 de superficie, 16 a 17,5m3 de volumen, 7m2 de superficie para camas, 1m2 para la bomba de aire, (curiosamente) no hay previsto para el water "seco"..., 1 bomba de aire, 1 water "seco", 1 salida de socorro (44) (figura 1). Los tamaños van de los Schutzräume para una familia de 4 personas hasta el más grande en el túnel del Sonnenberg, cerca de Lucerna, con una capacidad de 17.000 personas (!), aunque reducida a 2.000 plazas protegidas en el año 2000 (45).
Resulta curioso constatar que las paredes del Schutzraum normal para la población tienen 30 cm de grosor, las de los puesto sanitario, 1m, y las de los puestos de mando de la protección civil, 130 cm. A la vista de estos datos, cabe preguntarse por la importancia que se da a la protección de la mayoría de la población, la "normal", en caso de guerra o de emergencia (46).
Figura 2
Esquema de un refugio antinuclear bajo tierra, planificado para
101 a 200 personas
(por ejemplo en los sótanos de una escuela o de un edificio
público)
Fuente: OFFICE FÉDÉRAL DE LA PROTECTION
CIVILE, ITAP 1984: Instructions téchnique pour la construction d'abris
obligatoires.
Berne: EDMZ, 1984, p.12.
Funcionamiento del refugio antinuclear
En principio, la ocupación de los refugios estará precedida por una alarma general acústica que señala a la población la presencia de un peligro. Al sonar la alarma (47) la primera medida será sintonizar la primera cadena de la radio nacional (48) y escuchar las indicaciones y detalles sobre el peligro. Luego, si el peligro hace necesario ocupar los refugios, la población irá a las plazas que le estén asignadas, o en caso de emergencia inmediata, al refugio público más cercano. Se prestará ayuda a la gente mayor y a los minusválidos y se procederá a la ocupación del Schutzraum. La instalación en los refugios estará coordinada por los órganos del cuerpo de protección civil movilizados. Se seguirá escuchando a las informaciones dadas por radio (49).
En caso de guerra convencional, previsible con plazos de tiempo suficientes, se distribuirá a toda la población raciones individuales de agua y comestibles primarios y otros objetos para pasar el tiempo bajo tierra. En el anuario telefónico de cada cantón hay una lista con todos los objetos necesarios al ocupar el Schutzraum (50).
Ahora todo este proceso parece muy sencillo. Pero en el caso de tener que llevarlo a la práctica, seguramente aparecerían problemas que no se han previsto, sobre todo pensando en una ocupación a largo plazo, lo que refleja la debilidad del concepto del Schutzraum. Un folleto de la oficina de protección civil lo dice claramente:
"La atribución de plazas protegidas esta concebida de manera a no separar las familias. Pero es posible que éstas se vean obligadas a compartir el refugio con otras personas. De todas formas la vida en el refugio implica restricciones y la necesidad de respetar y comprender a los demás. La solidaridad y la responsabilidad mutua son indispensables en una situación extraordinaria como ésta."(51)
Pero con la progresiva individualización en la sociedad hoy en día y la forma de vida cada vez más compleja, en una situación de emergencia de tal calibre, el hecho de que cada persona tenga sólo un metro cuadrado de superficie para vivir puede resultar problemático.
El gran problema para las autoridades políticas durante la elaboración de la ley de 1963 fue encontrar datos científicos fiables sobre la duración de radiación después un ataque nuclear para evaluar el número de días real que la población habría de estar en el Schutzraum. A este efecto muchos pensadores antimilitaristas y de izquierda acusaban a los científicos de falsificar datos, como los presentados en un simposio en 1963 en el que se dijo que el tiempo de duración era de 8-10 días de media. Luego ya se podría empezar a salir de los refugios. La crítica se basaba en el hecho de indicar esa duración, porque nadie podría imaginarse encerrado bajo tierra con 1m2 a su disposición durante más de 2 semanas (52). También había el problema de que los datos de Hiroshima y Nagasaki no daban la suficiente información para establecer unas normas fiables.
El hecho es que la administración de protección civil
intentaba - y todavía intenta - convencer a la población
de la simplicidad de la ocupación de los Schutzräume, por ejemplo
a través de ejercicios con escolares que consisten en hacer pernoctar
una clase durante una noche en el Schutzraum de la escuela. Con las circunstancias
de jugar, abundancia de comida y bebida, juegos etc. es lógico que
los niños calificaran la experiencia - fuera de toda situación
de guerra real - de "guay". Pero otras experiencias de hasta una semana
hicieron surgir una multitud de preguntas básicas sobre el funcionamiento
de la protección civil que las experiencias realizadas con niños
y adultos no respondían satisfactoriamente
(53).
Obras construidas y costes
Como ya se ha señalado al principio de este trabajo, las primera obras de protección civil fueron los sótanos construidos en los edificios hasta la Segunda Guerra mundial, pero no explícitamente con este fin. Sólo durante la segunda guerra mundial las autoridades políticas empezaron a registrar y completar obras que faltaban, pero todavía del tipo de un sótano clásico, simplemente reforzados por pilares de madera y sacos de arena. Así que, se vigilaba que en esos tiempos las poblaciones de más de 3.000 habitantes estuvieran dotadas de refugios, por el pensamiento de que el peligro de ataques aéreos solo afectaba a las grandes ciudades, tal como ocurrió en las ciudades alemanas durante la segunda guerra mundial. Se estima que en 1945 un 30 por ciento de la población en las zonas "de peligro" contaba con plazas protegidas. Los centros económicos de Zürich (70 por ciento), Berna, Basel-Stadt y Genève concentraban un 83 por ciento de las plazas disponibles de todo el país. Entre 1951 y 1961 se construyeron casi un millón de plazas protegidas, con una inversión de 30 millones de francos por parte del Estado. Gracias a la buena coyuntura económica durante los años sesenta, cada año se reconstruyó un 3 por ciento del conjunto de las obras existentes. Fueron factores como el doble uso de los "Schutzräume", como garaje o local de almacén en caso de paz, o la baja tasa de viviendas en propiedad (<30 por ciento), que facilitaron al gobierno la realización de nuevas plazas protegidas (54).
En 1962 el Consejo Federal estimaba el coste medio por plaza protegida en 800 francos suizos, así que las inversiones en materia de obras de protección solo parecían tan altas a nivel internacional, por el gran número de construcción de obras.
Las subvenciones del Estado eran de 416 millones de francos entre 1961 y 1970. En total estas inversiones representaban un 1 por ciento de todas las inversiones hechas por el Estado en el ámbito de las construcción de obras en general.
El objetivo a largo plazo es asegurar la existencia de una plaza protegida
por persona en toda la población. Esto supone una construcción
total de 6.000.000 de plazas protegidas. Desde 1945 hasta 1970 el número
de plazas protegidas construidas subió de 700.000 a 2.4 milliones
(cuadro 2). Hoy día están realizadas un 95 por ciento, o
en cifras absolutas 5.700.000.
| Año | Número de refugios | Número de plazas protegidas |
| 1945 | 36.000 | 700.000 |
| 1953 | 10.000 | 200.000 |
| 1957 | 30.000 | 700.000 |
| 1963 | 50.000 | 1.500.000 |
| 1970 | 95.000 | 2.400.000 |
A pesar de todos los esfuerzos para proteger la población, durante los años setenta todavía se pensaba dentro de la administración militar que el refugio "que no tenga en cuenta los efectos de las armas modernas se transformará en una tumba para sus ocupantes" (55), hecho que demuestra que muchas de las inversiones efectuadas durante los años cincuenta y sesenta no habrían servido para mucho más que la construcción de tumbas en el caso de un ataque con armas nucleares. De hecho fue solo en el año 1962 cuando se empezó con la instalación de refugios, tal como existen hoy en día.
Los gastos para los propietarios han subido, entre 1970 y 1985, de 70
millones a 120 millones de francos, debido a la abolición de la
ley de las contribuciones y también por los crecientes requisitos
técnicos en el ámbito de las construcción de obras
de protección civil. En consecuencia, los gastos por parte del gobierno
han disminuido (cuadro 3).
| Gastos oficiales | 1970 | 1985 |
| Confederación, cantones y municipios | 565 | 460 |
| Propietarios de edificios | 70 | 120 |
| Total de gastos oficiales | 635 | 580 |
| Gastos ocultos (estimación) | 44 | 216 |
| Peso total de la protección civil sobre la economía suiza | 679 | 796 |
En 1991 había, según datos de la oficina de protección
civil, 5.9 millones de plazas protegidas a disposición en todo el
territorio suizo. A pesar de las diferencias entre los 26 cantones y entre
los municipios, había un promedio de una plaza protegida por persona
para el 90 por ciento de la población suiza. Durante la década
de los años ochenta, los costes de las plazas se mantuvieron estables
con un gasto medio de 150 millones de francos para los refugios obligatorios
y de 55 millones para los refugios públicos (cuadro 4).
| Inversión | 1980 | 1981 | 1982 | 1983 | 1984 | 1985 | 1986 | 1987 | 1988 |
| Refugios obligatorios | 150 | 170 | 160 | 140 | 135 | 145 | 115 | 145 | 160 |
| Refugios públicos | 45 | 45 | 50 | 65 | 70 | 55 | 45 | 70 | 50 |
| Obras de las organizaciones de los municipios | 105 | 105 | 105 | 100 | 105 | 115 | 150 | 135 | 130 |
| Total (incluida la Formación de personal, material etc.) | 540 | 575 | 590 | 600 | 625 | 620 | 610 | 645 | 675 |
Para el año 2001 ya había plazas protegidas para más
del 95 por ciento de la población (56).
El coste medio de construcción por plaza protegida depende de su
función y emplazamiento. Puede oscilar desde 850 francos, para un
refugio básico de una vivienda familiar, hasta 22.500 francos por
plaza para operaciones quirúrgicas en hospitales subterráneos
(57).
| Suiza | Suecia | URSS | Israel | Dinamarca | Noruega | Finlandia | Alemania |
| 28 | 19 | 17 | 8 | 8 | 8 | 8 | 7 |
| Luxemburgo | Italia | Belgica | Gran Bretaña | Holanda | Canada | EE.UU. | Francia |
| 4 | 3 | 2 | 2 | 1,5 | 1,5 | 1 | 0,5 |
A escala internacional, Suiza ocupa el primer puesto en gastos en el
ámbito de la protección civil (cuadro 5). Parece interesante
el hecho de que Francia, país vecino de Suiza, ocupe el último
puesto, pero esto se debe a que cada país tiene distintas maneras
de reflejar los gastos efectivos en protección civil en sus cuentas
nacionales. También resulta difícil este tipo de comparaciones
al no existir una escala unificada de qué elementos se consideran
de protección civil y cuales no.
Los cambios en la percepción de los refugios por parte de la población
La influencia de la situación geoestratégica
Esta claro que todas las obras de protección civil las paga finalmente el ciudadano, ya sea directamente, cuando es él quien construye su propio Schutzraum, o bien indirectamente, a través de los impuestos que paga al Estado a los cantones y los municipios. Así se explica que, en los años cincuenta, el pueblo rechazase un primer intento de instalación de la protección civil. Pero las circunstancias geoestratégicas y las experiencias en el extranjero durante la segunda guerra mundial, han tenido su influencia clara a la hora de aceptar la elaboración de esa nueva organización. Más adelante, en los años sesenta y setenta, la riqueza incrementada gracias a la buena coyuntura, la propaganda realizada por el Estado y la agudización de la crisis de la guerra fría, fueron factores que llevaron a la población a aceptar la exagerada política de construcción de obras de protección civil. También el hecho de no haber vivido la guerra directamente en su propio territorio y la teoría de una seguridad absoluta contribuyeron en que se aceptaran las nuevas prescripciones del Estado.
De la necesidad al folklore
Los cambios a nivel geoestratégico y la disminución continua del riesgo de una guerra nuclear generalizada, hicieron aumentar las voces críticas a partir de los años ochenta, sobre todo dentro del creciente "movimiento de paz". Además, con la caída del muro de Berlín aumentó definitivamente la crítica al concepto de "protección civil". La respuesta del Estado a dichas críticas se hizo claramente visible con el aumento de reformas de leyes y de nuevas evaluaciones de la situación. La recesión económica también disminuyó las expectativas de invertir una importante cantidad de dinero en algo que, probablemente, sería poco o nada utilizado en el futuro. (58)
Los cambios en el uso de los refugios de protección por una gran variedad de usos alternativos, ayudó, en cierta medida, a una aceptación de las obras. Desde simples bodegas de vino privadas, salas de bricolaje, un lugar para practicar deportes como el tenis de mesa, salas de uso múltiple, hasta discotecas; siguen presentes como tipos de uso alternativo de los refugios, en la actualidad.
En los años noventa se hicieron varias encuestas sobre la estimación de la situación geoestratégica actual y como consecuencia, sobre la necesidad de órganos como la protección civil o las Fuerzas Armadas (cuadro 6). La comparación entre la encuesta de 1995 y 1997, el porcentaje de la población que estimaba la protección civil como "necesaria o más bien necesaria", cayó de un 83 por ciento a un 75 por ciento. La opinión sobre el buen funcionamiento de la protección civil en un caso de guerra o catástrofe mayor es de un 11 por ciento para los que piensan que será muy bueno, un 34 por ciento lo consideran bueno, un 31 por ciento suficiente y un 20 por ciento lo estiman insuficiente en 1997. Una cuarta parte de los encuestados son de la opinión de que se gasta demasiado dinero en la protección civil - cifra que es parecida a la de una encuesta de 1989. En dicha encuesta se planteaba abiertamente la cuestión de la necesidad de la existencia de una protección civil. (59)
La proporción de personas que opinaban que la protección
civil es necesaria descendió en 10 años un 18 por ciento.
En cambio, los que opinaban que era "más bien necesaria" aumentaron
un 13 por ciento. Esta evolución demuestra que hubo un cambio en
la mentalidad de la gente y que se puso en duda dicha organización
y sus obras. Los que veían la protección "mas bien innecesaria",
crecieron un 6 por ciento y, curiosamente, descendió el porcentaje
de los claramente opuestos a la protección civil. Los sucesos como
catástrofes por avalanchas, incendios forestales o inundaciones,
donde la protección civil pudo intervenir y ayudar son responsables
de la evolución de las cifras de los contrarios a la protección
civil. Pero hay que tener en cuenta que esta encuesta no se refiere únicamente
a las obras sino a toda la organización. Seguramente, los resultados
de tal encuesta serían más negativos si se considerasen solo
las obras, porque éstas no han tenido ninguna utilidad desde el
comienzo de su existencia, en los años sesenta.
| 1987 | 1989 | 1991 | 1993 | 1995 | 1997 | |
| Necesaria | 58% | 55% | 55% | 45% | 46% | 40% |
| Más bien necesaria | 22% | 26% | 27% | 30% | 37% | 35% |
| Mas bien innecesaria | 9% | 9% | 10% | 13% | 11% | 15% |
| No necesaria del todo | 8% | 8% | 6% | 9% | 4% | 7% |
| No sabe / no contesta | 3% | 2% | 2% | 3% | 1% | 2% |
| Personas entrevistadas | 675 | 689 | 674 | 706 | 709 | 711 |
La opinión sobre la utilidad de la protección civil ha
cambiado dentro de la población, pero muy poco para poder decir
que son una mayoría los que ya no ven útil el mantenimiento
de una institución tan cara. Quizás haya que esperar que
las generaciones que han "aprovechado" la "protección" ofrecida
por parte de Protección Civil ya no estén, para, por fin,
poder cambiar profundamente - en un sentido de reducción - esta
institución.
Conclusiones
Es cierto que la concepción de la protección civil no ha sido siempre adecuada a la situación geoestratégica. Pero lo que sí está demostrado es que históricamente la política suiza en la materia ha estado guiada por la experiencia de las guerras en el extranjero. En este sentido, las desmesuradas inversiones en una protección civil que ni siquiera sería una garantía absoluta en un caso de guerra nuclear, se podrían considerar de modo análogo al del seguro que cada uno puede comprar en su vida privada o no. Solo que en este caso es un seguro colectivo y obligatorio; y, por más innecesario que pudiera resultar, se ha podido financiar gracias a los medios económicos disponibles en este país durante muchos años.
La idea básica de la protección civil seguramente es buena, pero es irrealizable en la práctica y su precio resulta exagerado. A pesar de la imagen tan atractiva con que las autoridades presentan el Schutzraum, su ocupación y la vida en él, habría que vivir una situación real para poner de manifiesto sus puntos débiles y los desfases existentes entre la teoría expuesta y la práctica. Nadie en este mundo desearía tener que comprobarlo, pero ésa es la única manera de demostrar a los autores del concepto que éste no es tan perfecto, ni su funcionamiento tan fácil.
En todo caso la opinión pública, reflejada en los chistes de los dibujantes más populares expresan claramente los límites de dichas obras de protección civil (figura 3).
Figura 3
Caricaturas de Bernard Chiquet mostrando la utilidad (avestruz)
y
la utopía del funcionamiento de las obras de protección
civil (maqueta)

Fuente: ALBRECHT, Peter et al. La protection civile
en Suisse: Un dossier en béton. Lausanne: Éditions d'en
bas, 1990, p.1+101.
El mantenimiento de la actual forma de la protección civil y sus construcciones se debe al desinterés de la población, que además financia toda esa infraestructura. Para que se produjera un cambio de mentalidad por parte de los ciudadanos harían falta un discurso político más profundo y dirigido a toda la población y un detenido examen de las inversiones en materia de protección civil. De esa misma manera tendría que ser tratado el tema de las Fuerzas Armadas, todavía vinculadas con la protección civil en el concepto global de la defensa del territorio. Pero, a este respecto, el examen crítico de la situación tropieza con la dificultad de los continuos anuncios que se hacen últimamente sobre cambios y reestructuraciones dentro de la institución.
Por desgracia, la población, que a través de sus impuestos y del pago directo de las obras privadas, financia toda esa locura, no se plantea la necesidad de revisar la protección civil que tiene el país actualmente. La población sigue pensando que la seguridad no tiene precio y está dispuesta a mantener un arsenal de obras de protección civil por amplio y costoso que sea. Esa mentalidad se podría entender durante el período mas caliente de la guerra fría, por la influencia de las imágenes de las devastaciones de las bombas atómicas y el enorme armamento nuclear de las dos superpotencias, pero a partir de la desaparición de una de ellas y del cambio geoestratégico que ello supuso, es evidente que hubiera tenido que reflexionar mas profundamente y reconocer la inutilidad de las obras en cuestión.
Para calibrar la desmesura de las inversiones en obras de protección civil basta constatar que hay todavía muchos países en el mundo que no tienen ni una asistencia sanitaria y médica mínima asegurada, mientras que en Suiza hay centenares de hospitales y puestos de socorro que nunca han sido utilizados, y probablemente nunca lo serán. Dicha situación evidencia que en Suiza se ha optado claramente por invertir la riqueza en obras para calmar una fobia colectiva exagerada y no en obras sociales seguramente más útiles, y sobre todo, útiles ahora mismo.
En vez de integrarse en organizaciones como la Unión Europea, las Naciones Unidas (60) o la OTAN, Suiza ha preferido quedarse al margen y seguir su propio camino. Por eso se ve obligada a mantener un sistema de seguridad nacional (a parte de las Fuerzas Armadas enormes) con un gigantesco aparato de protección civil que genera unos gastos innecesarios y excesivos.
Además de los puntos mencionados sobre la protección civil en general, hay otros sobre el funcionamiento de las obras que conviene tener muy en cuenta. Es muy cuestionable que el ser humano pueda soportar estar encerrado durante días, semanas o hasta meses en caso de guerra nuclear. Los planes de los refugios editados por el gobierno no parecen tener en cuenta que sus ocupantes son seres humanos sometidos no sólo a la presión psicológica de la guerra, sino también, en el caso de los refugios colectivos, a una presión enorme por parte de unos compañeros de refugio a los que ni siquiera conocería. Con nuestra sociedad cada vez más individualista y egoísta, resulta difícil imaginar una ocupación de los refugios que no acarree problemas. Todo ello sin tener en cuenta que la ínfima comodidad de los refugios (sin intimidad, retretes secos, sin agua corriente etc.) haría casi imposible su funcionamiento correcto.
Finalmente, quisiera insistir en que muchos de los interrogantes que
sigue planteando el tema de las obras de protección civil tienen
su origen en la falta de control de esta institución, que, como
las Fuerzas Armadas -a las que se atribuye el mantenimiento de la paz en
el país durante los últimos 150 años-, se considera
por encima de toda crítica, como una auténtica "vaca sagrada".
Notas
1. Por "personal" se entiende el cuerpo de protección civil, compuesto, como la milicia de las Fuerzas Armadas, por la población suiza que efectúa sus deberes con servicios de instrucción y con cursos de repetición anuales o bianuales, así como los ciudadanos que efectúan su servicio militar obligatorio. El cuerpo de protección civil contiene también profesionales, tal como las Fuerzas Armadas.
2. Cabe destacar en este punto, por ejemplo, el comportamiento suizo hacía los refugiados judíos o la política económica hacía el Tercer Reich de Hitler, durante la segunda guerra mundial. Para el estudio detallado de este capítulo oscuro en la historia suiza, se recomienda la lectura de: BERGIER J.F., La Suisse et les réfugiés à l'époque du nacional-socialisme / Commission indépendante d'experts Suisse - Seconde Guerre mondiale, Berne: EDMZ, 1999.
3. Pasiva en el sentido de limitarse a la aplicación de las siguientes actividades: observar, oscurecer y proteger.
4.Esta totalidad era muy relativa, sobre todo mirando los negocios con el Tercer Reich. En relación a este tema se recomienda la lectura del informe final de la comisión de investigación Bergier, que intentó aclarar en los últimos años el papel de Suiza durante la segunda guerra mundial: BERGIER J.F., La Suisse et les transactions sur l'or pendant la Seconde Guerre mondiale: rapport intermédiare, Berne: EDMZ, 1998.
5.Dentro del espacio aéreo están los bombardeos aéreos, las tropas paracaidistas, los misiles del tipo V1-V3 etc.
6.Al acabar la segunda guerra mundial fue criticada fuertemente esa idea de dejar a la mayoría de la gente de los centros económicos de la llanura entre el Jura y el macizo de los Alpes a su suerte ante un posible agresor. También hay voces conservadoras, de derechas y pro-militares, que apoyan la teoría de que haya sido justamente por el concepto del Réduit que el Tercer Reich dejó en paz a Suiza.
7. Palabra típica que se puede traducir como refugio antiaéreo en estos tiempos, pero con la amenaza nuclear se amplio a Atomschutzbunker o en fracés simplemente con abri de protección civile.
8.Bundesbeschluss, von 1954, betreffend den baulichen Luftschutz
9. Una independencia relativa, porque el sistema jerárquico de las Fuerzas Armadas fue adoptado plenamente y la cooperación entre ambos también era un hecho evidente, debido a la misión complementaria de ambos órganos, Fuerzas Armadas y protección civil. La última fue integrado en el Departamento de Justicia y Policía.
10.Para un estudio profundo de la historia de la neutralidad suiza, se recomienda la obra fundamental de BONJOUR EDGAR, Histoire de la neutralité suisse: quatre siècles de politique extérieure fédérale. Neuchâtel: Éditions La Baconnière, 1971.
12. De hecho el pueblo suizo aceptó por fin el 3 de marzo de 2002 la adhesión a la ONU con una pequeña mayoría de 54% de los votos a favor. A escala mundial estaba hasta entonces sola como no-miembro permanente al lado del Vaticano.
13.A pesar del derrumbamiento de la Ex-URSS, Rusia sigue en manos de armas nucleares.
14.Terrorismo, OOTW (Operations Other Than War), conflictos debajo del limite de guerra etc.
15.En casos de catástrofes naturales, como avalanchas, inundaciones o consecuencias como las del huracán Lothar en diciembre de 1999, o técnicas, como un accidente nuclear en una central o grandes incendios etc.
16.La reforma prevé una duración de servicio de 24 semanas seguidas, como antes en España o en una instrucción básica y luego el resto de los días en forma de cursos de repetición. Dentro de la protección civil se reducirán simplemente los días obligatorios.
17. Loi fédérale sur la protection civile, du 23 mars 1962, art. 1, aptd. 1.
18.Loi fédérale sur la protection civile, du 23 mars 1962, art. 1, aptd. 2.
19.Loi fédérale sur la protection civile, du 23 mars 1962, art. 2.
20.Loi fédérale sur la protection civile, du 23 mars 1962, art. 3.
21. La obligación de construcción de obras municipales y el establecimiento de cuerpos de protección civil depende del número de habitantes del municipio. En el caso de un número inferior al mínimo (en la mayoría de los casos este se sitúa al rededor de 2000 habitantes), se efectuarán pagos de substitución a los municipios encargados de asegurarla.
22. Loi fédérale sur la protection civile, du 23 mars 1962, art. 7-10.
23.Loi fédérale sur la protection civile, du 23 mars 1962, art. 11+12.
24. Loi fédérale sur la protection civile, du 23 mars 1962, art. 13.
25.Loi fédérale sur la protection civile, du 23 mars 1962, art. 62-66.
26.Loi fédérale sur la protection civile, du 23 mars 1962, art. 69-72.
27. Loi fédérale sur les constructions de protection civile, du 4.X.1963, art. 1.
28. Loi fédérale sur les constructions de protection civile, du 4.X.1963, art. 2-4.
29.Loi fédérale sur les constructions de protection civile, du 4.X.1963, art. 5-8. Admitiendo que el coste total de una casa unifamiliar para 4 personas haya sido alrededor de 450.000 francos, la parte del refugio habrá podido costar hasta 45.000 francos...
30. Loi fédérale sur les constructions de protection civile, du 4.X.1963, art. 9.
31.Ordonance sur les constructions de protection civile, du 15.V.1964, art. 4+5.
32.Ordonance concernant les normes d'éfficacité des constructions de protection civile, du 11.VIII.1976, art. 1.
33.Ordonance concernant les normes d'éfficacité des constructions de protection civile, du 11.VIII.1976, art. 2.
34.Ordonance concernant les normes d'éfficacité des constructions de protection civile, du 11.VIII.1976, art. 3.
35.Loi fédérale revisant la législation sur la protection civile, du 7.X.1977, art. 66.
36.Ordonance sur les constructions de protection civile, du 27.XI.1978, art. 3.
37.Ordonance sur les constructions de protection civile, du 27.XI.1978, art. 4.
38.Ordonance sur les constructions de protection civile, du 27.XI.1978, art. 16.
39.Ordonance sur les constructions de protection civile, du 27.XI.1978, art. 18.
40. Los precios de plazas en refugios colectivos son dictados por los cantones y el cantón de Friburgo, por ejemplo, pide para una plaza 1.650 francos suizos(CONSEIL D'ÉTAT DU CANTON DE FRIBOURG, Arrête du 11.XI.1996 relatif aux contributions de remplacement et de rachat pour les abris de protection civile, art. 1.).
41.Ordonance 520.1 sur les constructions de protection civile, art. 3.
42."Projet Monteuil" de loi fédérale de la protection civile, art. 45. En este artículo uno se puede preguntar sobre el significado de la definición del "plazo de tiempo razonable" que seguramente variará dependiendo del caso de emergencia.
43. "Seco" en el sentido de que se recogen las heces y se guardan en cubos especiales, en lugar de recorrer al water que funciona con un sistema de agua.
44.En el anexo de este trabajo se encuentran algunos planes de refugios. Para los detalles de las exigencias mínimas para "Schutzräume", siga el documento:OFFICE FÉDÉRALE DE PROTÉCTION CIVILE, ITAP 1984, Instructions techniques pour la construction d'abris obligatoires. Berna: EDMZ, 1984.
45.Para más informaciones sobe este mega-"Schutzraum": REINMANN EDUARD, Der Grossschutzraum hat ausgedient. Sonnenbergtunnel: von 17.000 auf 2.000 Schutzplätze zurückgestuft, en: Zivilschutz, 47.año, Núm.4, p. 45, Bern, 2000.
46. Albrecht et al., 1990, p. 89.
47. Actualmente hay instalados sistemas de alarma en tantos lugares que uno se podría dar cuenta de una alarma desde cualquier lugar poblado del país.
48.DRS 1 para la parte suizo-alemana, RSR 1 para la parte de habla francesa y RSI 1 para la el cantón de habla italiana.
49. La pregunta de cómo escuchar una radio bajo tierra y además rodeado por una construcción hecha de hormigón armado tendrá que ser hecha a un especialista de telecomunicaciones, pero me parece poco probable tener cobertura en las dichas instalaciones...
50. Obsérvese cualquier anuario telefónico suizo en las últimas páginas para los detalles de las diferentes alarmas, las prescripciones para el comportamiento en caso de alarma, el material necesario etc. Una idea de como tendría que funcionar la vida en el "Schutzraum" da la libreta informativa: BUNDESAMT FÜR ZIVILSCHUTZ, Das Leben im Schutzraum, Bern: EDMZ, 1989.
51. Office fédéral de la protection civile, 1992.
53.Albrecht, 1990, págs. 165-166.
54.Albrecht, 1990, págs. 84-86.
55.Palabras del Jefe del Estado Mayor de las Fuerzas Armadas suizas J.J.Vischer, en: Albrecht, 1988, p. 88.
56. Office fédéral de la protection civile, 2001.
57. Bundesamt für Zivilschutz, 1991, p. 703.
58.El mismo argumento utilizan ya desde hace decenas de años los contrarios a una Suiza neutral armada, que creen que las Fuerzas Armadas son únicamente un lujo para diversos poderes políticos conservadores...
59.Metzger, 1997, p. 7. Para más detalles véase la obra citada.
Bibliografía
Obras generales
ALBRECHT, Peter et al. Schutzraum Schweiz: Mit dem Zivilschutz zur Notstandsgesellschaft. Bern: Zytglogge, 1988.
ALBRECHT, Peter et al. La protection civile en Suisse: Un dossier en béton. Lausanne: Éditions d'en bas, 1990.
BERGIER, Jean-François. La Suisse et les transactions sur l'or pendant la Seconde Guerre mondiale: rapport intermédiare. Bern: EDMZ, 1998.
BERGIER, Jean-François. La Suisse et les réfugiés à l'époque du national-socialisme / Commission indépendente d'experts Suisse - Seconde Guerre mondiale. Bern: EDMZ, 1999.
BONJOUR, Edgar. Histoire de la neutralité suisse: quatre siècles de politique extérieure fédérale. Neuchâtel: Éditions La Baconnière, 1971.
ENGLER, Hans. Die Zivilschutzorganisation in der Schweiz. Bern: Verlag Herbert Lang & Cie AG, 1970.
IM HOF, Ulrich et al. Geschichte der Schweiz und der Schweizer. Basel: Helbing & Lichtenhahn, 1998.
HELBLING, Hanno et al. Handbuch der Schweizer Geschichte. Zürich: Verlag Berichthaus, 1980.
KELLER, Hans-Jörg. Zivilschutz in der Schweiz. Diepoldsau: ?, 1991.
LAUTERBURG, Wolfgang. Die Schweiz klammert sich stur ans „Schutzraum"-Konzept. WHO-Resolution zum Atomkrieg. Soziale Medizin n° 9, 1987, p. 41-42.
METZGER, Jan. Nichtmilitärische Bedrohung und Verteidigung im Urteil de Schweizerinnen und Schweizer. St.Gallen: Institut für Politikwissenschaften, Hochschule St.Gallen, 1997.
REINMANN, Eduard. Der Grossschutzraum hat ausgedient. Sonnenbergtunnel: von 17'000 auf 2000 Schutzplätze zurückgestuft. Zivilschutz, 47.año, n° 4, 2000, p. 45.
SCHWEIZ. BUNDESAMT FÜR ZIVILSCHUTZ. Organisation des Zivilschutzes in der Schweiz AEGIS International, n° 4, 1982, p. 20-25.
SCHWEIZ. BUNDESAMT FÜR ZIVILSCHUTZ. Das Leben im Schutzraum. Bern: EDMZ, 1989.
SCHWEIZ. BUNDESAMT FÜR ZIVILSCHUTZ. Zivilschutz: Zahlen, Fakten, Daten 1991. Bern: EDMZ, 1991.
SCHWEIZ. DIENST. Im Dienste der Bevölkerung. 25 Jahre Bundesgesetz über den Zivilschutz.Zivilschutz, n° 4, 1988, págs. 7-10.
SUISSE. OFFICE FÉDÉRAL DE LA PROTECTION CIVILE. ITAP 1984: Instructions techniques pour la construction d'abris obligatoires. Berne: EDMZ, 1984.
SUISSE. OFFICE FÉDÉRAL DE LA PROTECTION CIVILE. L'abri: clé de la protection. Berne: EDMZ, 1995.
SUISSE. OFFICE FÉDÉRAL DE LA PROTECTION CIVILE. La protection civile en bref 2001. Berne: EDMZ, 2001.
SUISSE. OFFICE FÉDÉRAL DE LA PROTECTION CIVILE. Protection de la population en cas de danger. Berne: EDMZ, 1998.
SWITZERLAND. FEDERAL OFFICE OF CIVIL DEFENCE. The 1971
Conception of Swiss Civil Defence. Bern: EDMZ 1991.
Textos legislativos
CANTON DE FRIBOURG. Arrête, du 11 novembre 1996, relatif aux contributions de remplacement
CANTON DE FRIBOURG, Loi d'application de la législation fédérale sur la protection civile (LAPC) , du 17 février 1998.
CANTON DE FRIBOURG, Règlement sur la protection civile (RPC), du 26 septembre 2000.
SUISSE. Loi fédérale sur la protection civile (LFPCi), du 23 mars 1962.
SUISSE. Loi fédérale sur les mesures en matière de construction dans la Protection Civile du 4 octobre 1963.
SUISSE. Loi fédérale revisant la législation sur la protection civile, du 7 octobre 1977.
SUISSE. Loi fédérale modifiant la législation sur la protection civile, du 5 octobre 1984.
SUISSE. Loi fédérale sur les constructions de protection civile (du 4 octobre 1963). Loi fédérale 520.1 sur la protection civile (Loi sur la protection civile, LPCi), du 17 juin 1994 (État le 1er juillet 1996).
SUISSE. Loi fédérale 520.2 sur les constructions de protection civile (Loi sur les abris, LCPCi), du 4 octobre 1963 (État le 1er janvier 1995).
SUISSE. Ordonance sur la protection civile (OPCi), Modification du 30 septembre 1985.
SUISSE. Ordonance sur les abris (OCPCi), Modification du 30 septembre 1985.
SUISSE. Ordonance sur les constructions de protection civile (du 15 mai 1964).
SUISSE. Ordonance concernant les normes d'efficacité des constructions de protection civile (du 11 août 1976).
SUISSE. Ordonance sur les constructions de protection civile (Ordonance sur les abris, OCPCi), du 27 novembre 1978.
SUISSE. Ordonance 520.11 sur la protection civile (OPCi), du 19 octobre 1994 (État le 12 janvier 1999).
SUISSE. Ordonance 520.21 sur les constructions de protection civile (Ordonance sur les abris, OCPCi), du 27 novembre 1978 (État le 1er janvier 1995).
SUISSE. Ordonance 520.23 sur les normes d'efficacité des constructions de protection civile (ONE), du 19 octobre 1994 (État le 1er janvier 1995).
SCHWEIZ. Verordnung über die baulichen Massnahmen im Zivilschutz (Schutzbautenverordnung BMV) vom 27. November 1978.
SUISSE. Projet de loi fédérale, Chap 5, Sct 1,
SCHWEIZ. Schwezerische Bundesverfassung.
Páginas en Internet
© Copyright: Marc Kaenzig, 2002.
© Copyright: Biblio 3W, 2002.
Ficha bibliográfica
KAENZIG, Marc. El miedo a la amenaza nuclear y las obras de protección en Suiza. Biblio 3W, Revista Bibliográfica de Geografía y Ciencias Sociales, Universidad de Barcelona, Vol. VII, nº 362, 4 de abril de 2002. http://www.ub.es/geocrit/b3w-362.htm [ISSN 1138-9796]